マンションにお住まいだったご夫婦。奥様の実家である築70年の平家が空き家になっており、解体などを検討していた際に柱や梁がしっかりしていることから、リフォームという選択肢を検討されたことがきっかけでした。弊社主催のセミナーにご参加いただき、性能向上リノベーションがもたらす健康維持増進に共感してくださり、ご実家へ住み替えるためのリノベーションを選択されました。
◆傷んだ構造材の交換や補強で安心安全な暮らし
◆床下・壁・天井・窓の断熱改修で断熱等級5へと性能アップ
◆24時間集中換気システムの導入で快適な空気質を保てる住空間へ
◆築70年の躯体を魅せる空間提案
◆庭を活かし、動線にも配慮したプランニング
◆感染症対策としても活用できる寝室の計画
◆収納率向上と適材適所な収納計画
これまで増改築を繰り返してきた築70年の平屋を安心して快適に暮らすことのできる自分たちらしい住まいにフルリノベーション。既存の梁を残して魅せるリビングと明るい南面LDKへ一新されました。感染症対策にも活用できる寝室計画などこれからの暮らしを見据えた間取りへ設計。

リフォームのポイント
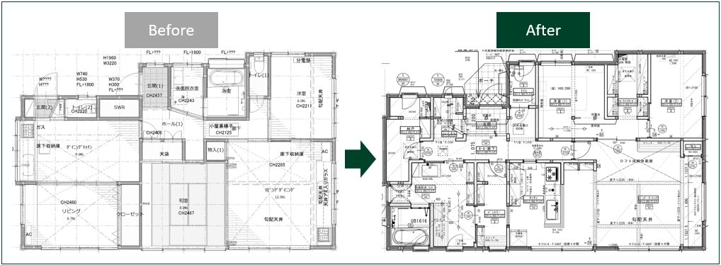
【築70年の躯体を魅せる明るく開放的なLDK空間へ生まれ変わりました。】
以前の和室とリビングダイニングを間取り変更して、ひとつながりの明るい南面LDKとしました。リビングの勾配天井部分には既存の梁を補強して新たな表しとし、空間デザインのアクセントになっています。断熱材を施しているので勾配天井(吹抜け)でも一年中快適に過ごすことができます。



【庭を活かし動線にも配慮したプラン計画】
これから広いお庭を活かして園芸を愉しみたいという奥様のご要望から、家庭菜園の作物を庭からキッチンへ運ぶ動線にも配慮してプランニング。庭からキッチンまで直線の動線なので使い勝手抜群ですね。


【2つあった玄関を1つへ、さらに玄関位置も変更しました。】
以前は玄関が2つありましたが、位置を変更して空間も広くなりました。新たな玄関にはシューズクロークを設置し使い勝手も向上しています。



【ZEH基準相当の断熱・健康的な空気質で快適な暮らしへ一新】
天井・壁・床下の断熱施工と全窓を高断熱樹脂サッシへ交換し、ZEH基準相当の断熱等級5へ断熱性能を向上させています。また、24時間集中換気の設置で健康な空気質で快適な空間に一新されています。

お施主様へお伺いしました
【今回のリフォームを考えはじめたきっかけを教えてください】
実家が空家状態となり、解体などを考えなければならないと思い始めました。改めて中を見てみると、昔のつくりからか、柱や染がしっかりしていることが素人目にも感じられ、リフォームという選択もあるのではと考えはじめました。
【当社にご依頼いただいた決め手を教えてください】
リフォームの可能性を考えはじめ、リビング仙台のセミナーに参加しました。その時に講師をなさっていたのが北洲の営業担当さんで、リフォームによる健康の維持・増進を主に話しておられました。
リフォームにより見た目をよくするだけでなく、その中身を整えることで居住する人が健康を維持増進するという考えに惹かれました。その後、家屋の状態や地盤の確認をしていただき、その時の丁寧な対応や綿密な調査の様子から北洲さんに依頼することを決めました。
【今回のリフォームで吟味された内容を教えてください】
基本的に実家に抱いていたイメージを一新するレイアウトをお願いしました。
また、昨今の感染症の流行から、帰宅時のうがい手洗いへの動線、感染者が出た場合の隔離部屋(小さいですが)を考えました。
【リフォーム中の思い出エピソードをお聴かせください】
空家状態となっていたため、解体したら屋根裏や床下・壁の間にハクビシンンの死骸が数匹発見され、職人さんに処理していただきました。本当にありがとうございました。
また、壁の間にバレーボール大のスズメバチの巣も発見され処理していただきました。重ね重ねありがとうございました。
元の設計図がまったく無く、各部分をすべて測量いただき、図面を復元したのには驚きでした。
そのおかげで素敵なリノベーションができたと思います。ありがとうございます。
【完成して住んでみてのご感想や、これから愉しみだなということを教えてください】
今年の夏も記録的な猛暑でしたが、快適に生活ができました。断熱がしっかりしているので、エアコン(1台)を稼働し部屋の扉を開け放つだけで、家全体の気温が維持できました。冬場も暖房を切って出かけたにも関わらず、窓からの日射だけで室温が保たれ、帰宅するとほんわりとした空気に迎えられました。
妻はこの春アレルギーも軽い症状で済み、夫婦ともに健康で暮らしています。人だけでなく引越しで持ってきた観葉植物たちもすくすくと成長しています。これからは、設計の佐藤さんが提案していただいた、「家庭菜園の作物を台所へすぐに運ぶ導線」や「リビングから眺める庭」を満喫できるようなスローライフを楽しみたいです。